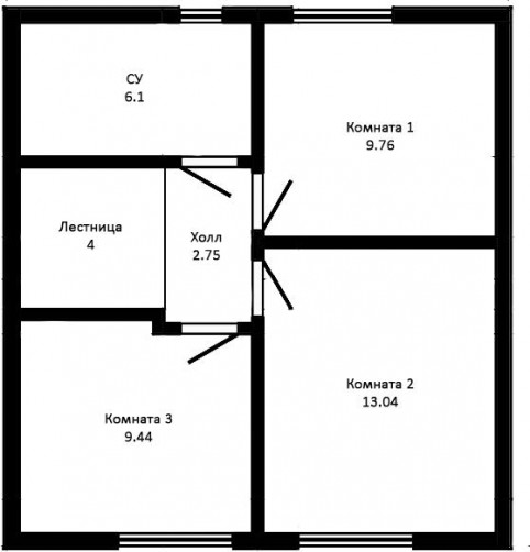
«Фееричный» 126 м2 — Отличается продуманной планировкой: пространства достаточно для комфортной жизни семьи и приёма гостей. Большие окна обеспечивают обилие естественного света и визуально расширяют интерьер.
Внешне дом выглядит стильно и современно: чистые линии, лаконичные формы и продуманные архитектурные акценты создают запоминающийся облик.
Комплектации:
ДОМОКОМПЛЕКТ 1 680 000 р.
СТАНДАРТ 4 900 000 р.
КОМФОРТ 5 800 000 р.
КОМФОРТ+ 7 500 000 р.
Выбор местоположения
Мы свяжемся с Вами в течение дня.