Модульный дом 2 этажа №241

Цена строительства от 8 500 000 ₽* * Стоимость не является окончательной
Заявка на консультацию
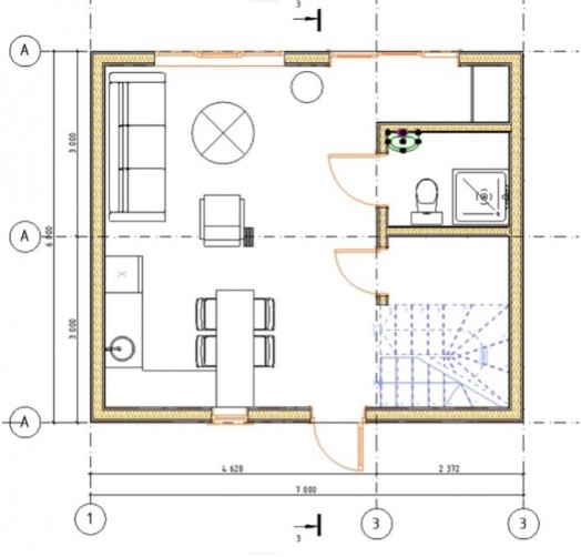
  • Общая площадь 63 м2
  • Длина 6 м
  • Ширина 8 м
  • Материал стен Каркас
  • Количество этажей 2
  • Подвал Нет
  • Мансарда без мансарды
  • Гараж Нет
  • Терраса Да
  • Проживание Круглогодичное
  • Количество комнат 2
  • Количество спален 1
  • Количество санузлов 1
  • Вид проекта дом
  • Застройщик КедрКэмп
  • Архитектурный стиль Современный
  • Отделка фасада Обшивка деревом
  • Крыша Плоская
  • Можно купить домокомплект Нет
  • Модульный тип строения Да
Описание проекта

Кедр – это натуральный материал, который отличается высокой прочностью и долговечностью. Он также обладает прекрасными теплоизоляционными свойствами, что позволяет сохранять тепло в доме даже в самые холодные зимы.

Одним из главных преимуществ каркасного дома из кедра является его экологичность. Кедр не только прекрасно выглядит, но и обладает целебными свойствами. Он выделяет фитонциды, которые убивают бактерии и вирусы, а также способствуют улучшению качества воздуха в помещении.

В целом, каркасный дом из кедра – это отличный выбор для тех, кто ищет комфортное и экологичное жилье. Он прекрасно подойдет как для постоянного проживания, так и для временного использования, например, на даче.

Выбор местоположения

Задать вопрос / написать нам

E-mail: domgis@mail.ru

Мы свяжемся с Вами в течение дня.

Тех. поддержка
Предмет обращения:
Тукущая страница

Мы свяжемся с Вами в течение дня.

Обратный звонок
Обратный звонок
Выберите ваш город
Пожаловаться

Объявление опубликовано.
Изменения сохранены

Период публикации - бессрочный, при условии подтверждения актуальности каждые 50 дней. Уведомления будут отправляться на Вашу электронную почту.

Выберите причину снятия с публикации

Снятые с публикации объявления не участвуют в поиске и недоступны для подробного просмотра.

Для повторной публикации нажмите «Вернуть в публикацию»